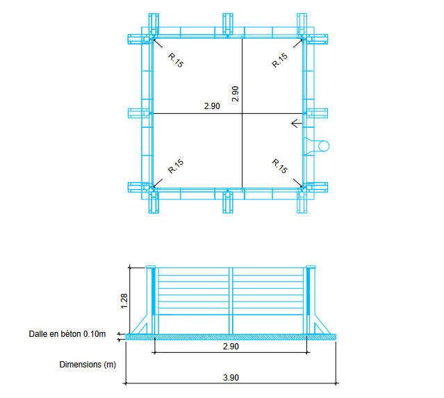
Kit Piscine Béton Aspect Bois Carré 324x324x143cm
Découvrez la piscine en béton Naturalis R00, aux dimensions compactes de 324 x 324 x 143 cm, avec un design carré et un élégant aspect bois teinté. Cette piscine combine robustesse et esthétique, s'intégrant harmonieusement dans tout type de jardin.
Sa structure 100 % béton, incluant des traverses solides, est renforcée par une margelle en béton teinté et un support intérieur de 4 mm pour une stabilité renforcée.
Le système de filtration standard comprend un skimfiltre de 12 m³/h avec une pompe de 3/4 CV, garantissant une eau claire et propre. Une buse de refoulement en ABS maintient un flux constant. Une option de filtration à sable est également disponible avec un surcoût pour ceux qui préfèrent une alternative de filtration.
Le liner 75/100 assure une étanchéité durable, solidement fixé par un profilé et un jonc de blocage. Une moquette de sol de 350 g est incluse pour offrir un confort et une protection supplémentaires, pour un espace de baignade agréable et durable.
-
Escalier d'angle intérieur 1.40m pour Kit Piscine en Béton Aspect Bois RectangulairePrix Spécial 1 699,00 € Prix normal 2 299,00 €



















